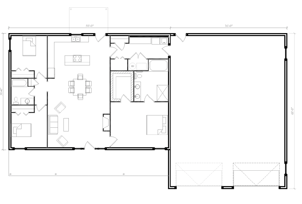
Living: 1800 sq. ft., Shop: 1728 sq. ft.
This convenient floor plan packs a lot into the space without feeling crowded. The master suite with bath and oversized closet/safe room space is separate from the other bedrooms that share their own bathroom. The living space is open with plenty of room for dining, entertaining, and relaxing. The mudroom connects the shop space to the kitchen with room for utilities and laundry space.
Features:
36’ x 9’ x50’ living space
36’ x 16’ x 48’ shop
Standard 4/12 pitch roof
Lean-to front porch with gable entry
Lean-to rear kitchen porch
Color-matched cupolas
Versettastone wainscot
Pella high-efficiency windows
Gutters and downspouts
14’ x 12’ and 14’ x 12’ insulated Raynor garage doors with operators
Floor plan highlights:
3 Bedroom, 2 Bath
2-bay hobby shop and/orboat/tall vehicle storage
Open floor layout
High ceiling great room
Primary bedroom suite
Age-in-place considerations
Walk-in-closet as safe room
Mudroom with kitchen access
Utility space
Washer-dryer space
Images may contain elements not part of the offering
Floor plans are intended for visualization and planning




















